The Regency retirement homes in South London
This stunning two-bedroom apartment is set within a vibrant, welcoming community.
Prices from £363,375*
2 bedrooms
7 available
Images are for illustration purposes only.
 
                             
                             
                             
                             
                             
                             
                             
                             
                             
                             
                             
                             
                             
                            The Regency
Prices from £363,375* / Essentials rent from £2,800 pcm
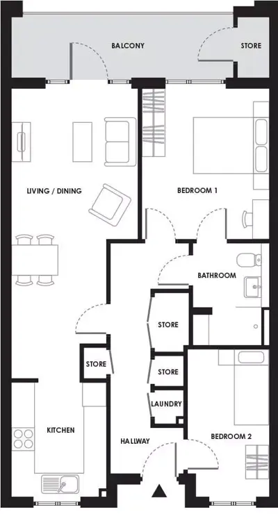
A two-bedroom apartment with en-suite bathroom, living/dining area, kitchen and private balcony, measuring 763 sqft (70.9 sqm).
Available to rent, buy or part buy, part rent.
*Please note, that other charges apply. Find out more.
Key Features
- Contemporary fitted kitchen
- Integrated cooking appliances, including Zanussi A energy-rated fan-assisted oven
- Bathroom featuring level access walk-in shower with tiled shower seat
- Double-glazed (UPVC) windows and patio door
- TV and telephone connection points in the living room/dining room and master bedroom
- Connectivity to Sky and Open Fibre Networks available
- Colour video and audio door-entry system with fob controlled access
- On-site call system
- Integrated home and community fire alarm system
Communal Hobby Room
Floorplan
| m | ft | |
| Living Room | 3.30 x 7.86 | 10'9" x 25'8" | 
| Kitchen | 2.48 x 3.00 | 8'1" x 9'9" | 
| Bedroom 1 | 3.35 x 3.95 | 10'11" x 12'11" | 
| Bedroom 2 | 2.15 x 4.01 | 7'0" x 13'1" | 
| En-Suite | 2.00 x 2.70 | 6'6" x 8'10" | 
| Total | 70.9 sqm | 763 sqft | 
Specification
Contemporary fitted kitchen
Stylish, fitted kitchen, designed with accessibility in mind to make life easy and comfortable for you. Your contemporary kitchen is fitted with a wide range of easy-to-use, appliances, including a Zanussi fan-assisted oven, four-ring hob and fridge/freezer. All appliances are A energy rated.
Spacious living areas
Light and roomy bedroom and living areas, featuring fitted carpets, pendant lighting, chrome sockets and switches, plus telephone and data sockets with optional connectivity to Sky and open fibre networks. Warm and welcoming, your living areas offer a quality and comfort that you'll love. Plus, there's plenty of in-home storage so you can maximise your living space
Private balcony
A spacious, private balcony with plenty of storage, so you can make the most of this outdoor space. It's the perfect place to relax outdoors and take in the views. Plus, all balconies are sheltered so you can enjoy your own outdoor space, whatever the weather!
Activities & events
 
            Our dedicated team at Button House organise a varied programme of activities and events each week, many of which are covered within your fee - so there's no extra cost.
Each week, you'll discover a range of exciting activities and events that you can get involved with. Here are just some of the activities on offer:
- Fitness and wellbeing classes, including yoga and Pilates
- Cookery classes
- Cocktail masterclass
- Digital club
- A wide variety of trips, tours and excursions
- Film and music club
- ...and much more!
Lifestyle support
 
            At Button House, a range of lifestyle support services are available, including:
- Cleaning
 Vacuuming, dusting, cleaning and interior window cleaning.
- Laundry
 Washing, drying and ironing laundry.
- Dog walking
 Taking your dog for a walk as required, so you can enjoy time to yourself.
- Pet sitting
 For cats, birds or fish that are accustomed to being left whilst you’re away.
- Customer assistance
 Support with paying bills and household paperwork, plus IT support and advice.
Speak to a member of our team for further information and prices.
Book a viewing
To arrange a viewing or book a virtual appointment by video call, please complete the form below or contact our friendly team on 0208 773 2838. Our opening hours are Tuesday to Friday 10am-4pm, Saturday 10.30am-4pm, and Sunday to Monday by appointment.
 
                             
                     
                     
                     
                     
                     
                     
                     
                     
                     
                     
                     
                     
                    